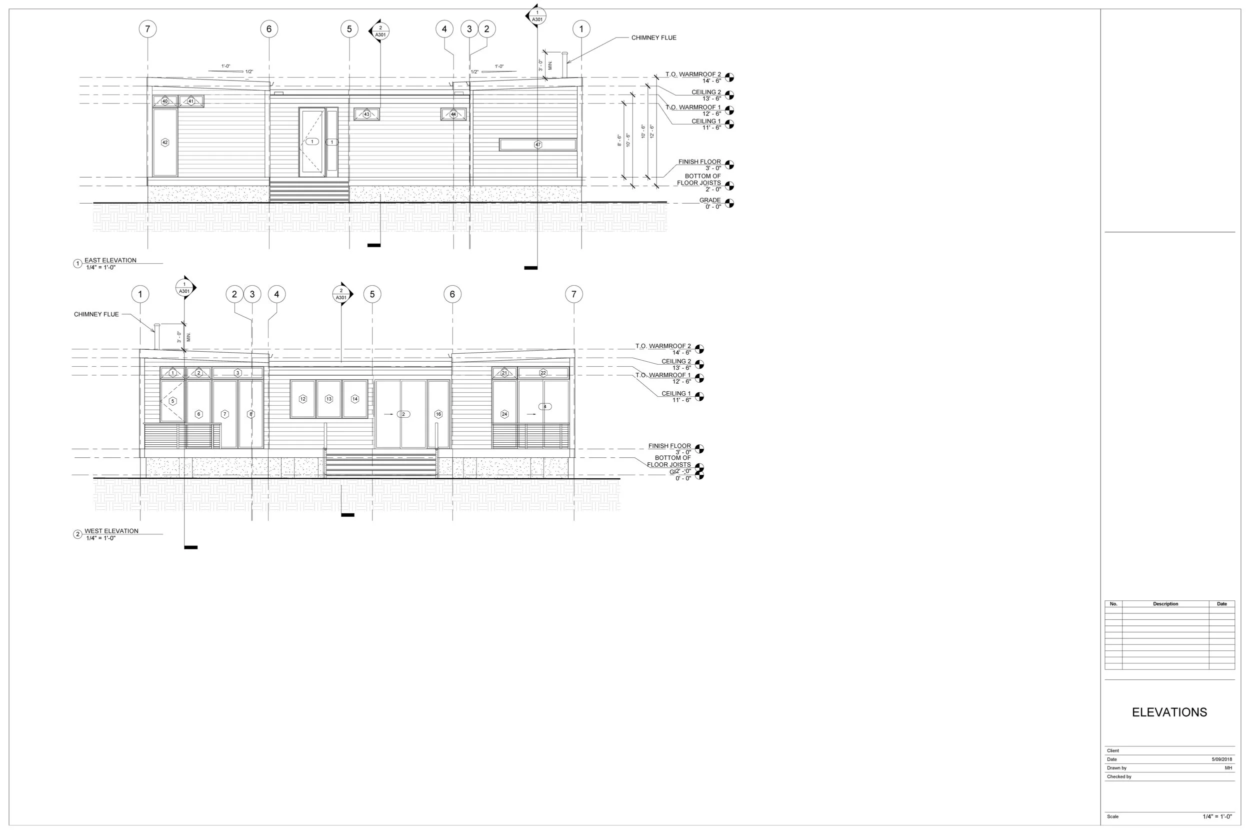
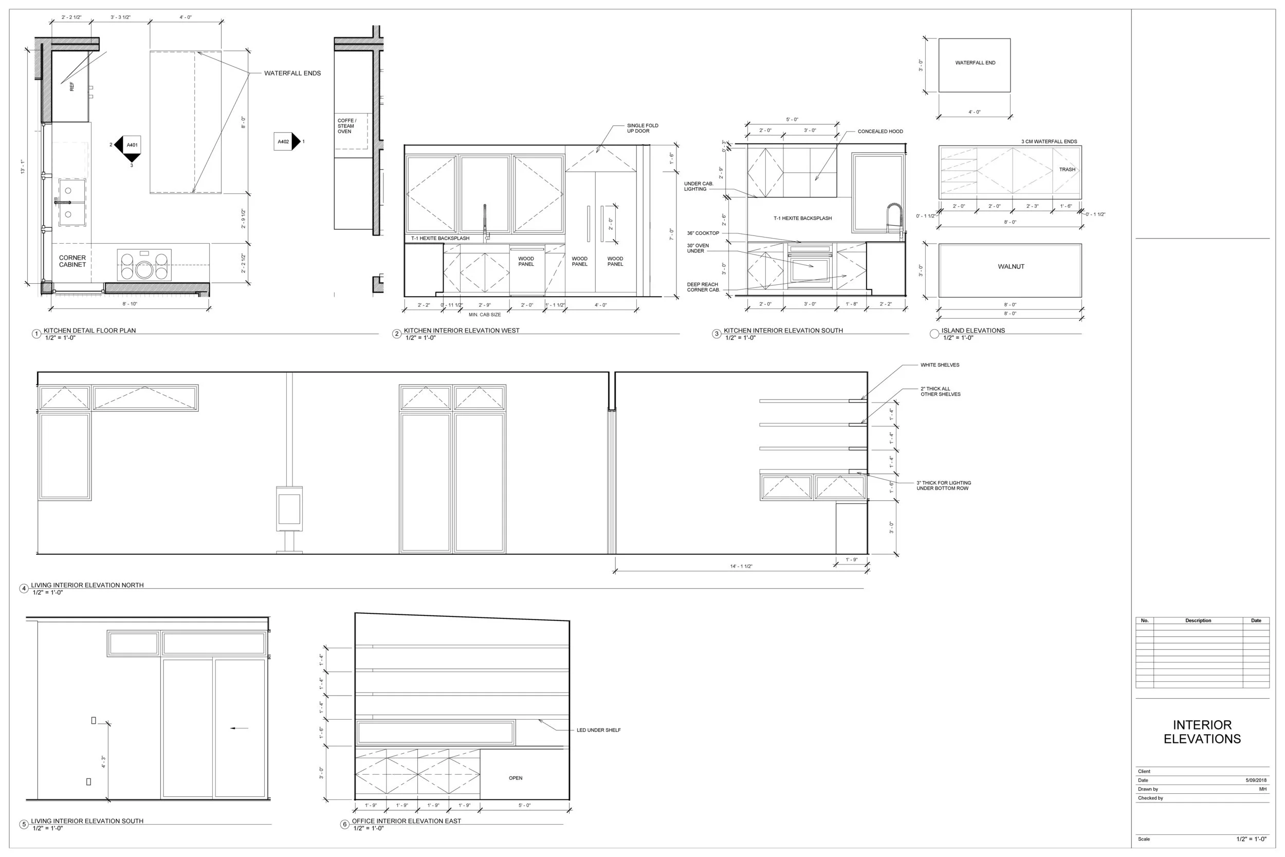
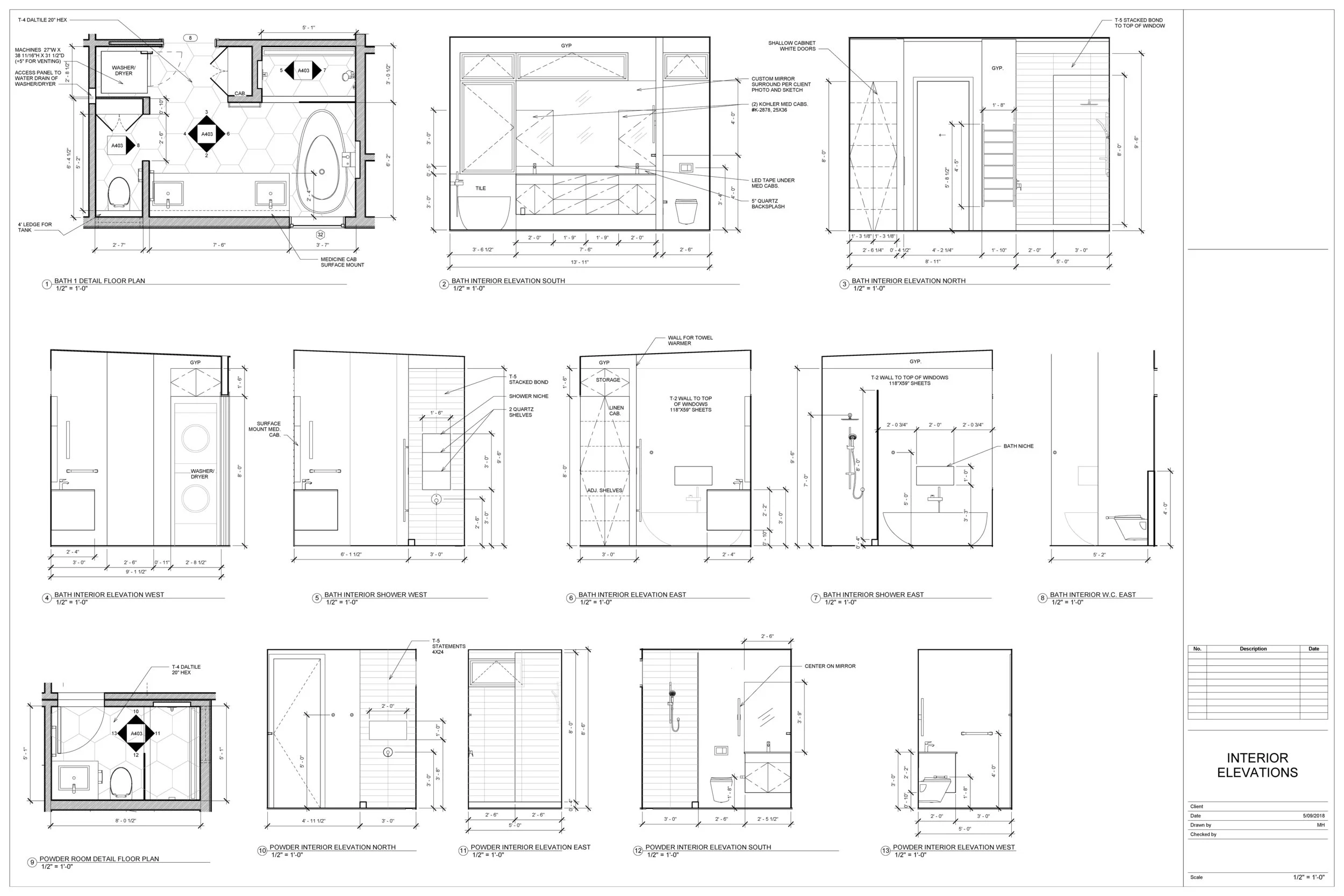
SAN JUAN HOUSE
1800 sf, 2 bedroom house on the San Juan Islands in Washington. Maximizing views to The Sound was particularly important to the client due to the property location. Selected permit set pages shown to display scope of project. Site and homeowner information has been removed for homeowner’s privacy.
CLIENT: Method Homes | YEAR: 2018 | ROLE: Design Development, Spec Management, Architectural Permit Set









